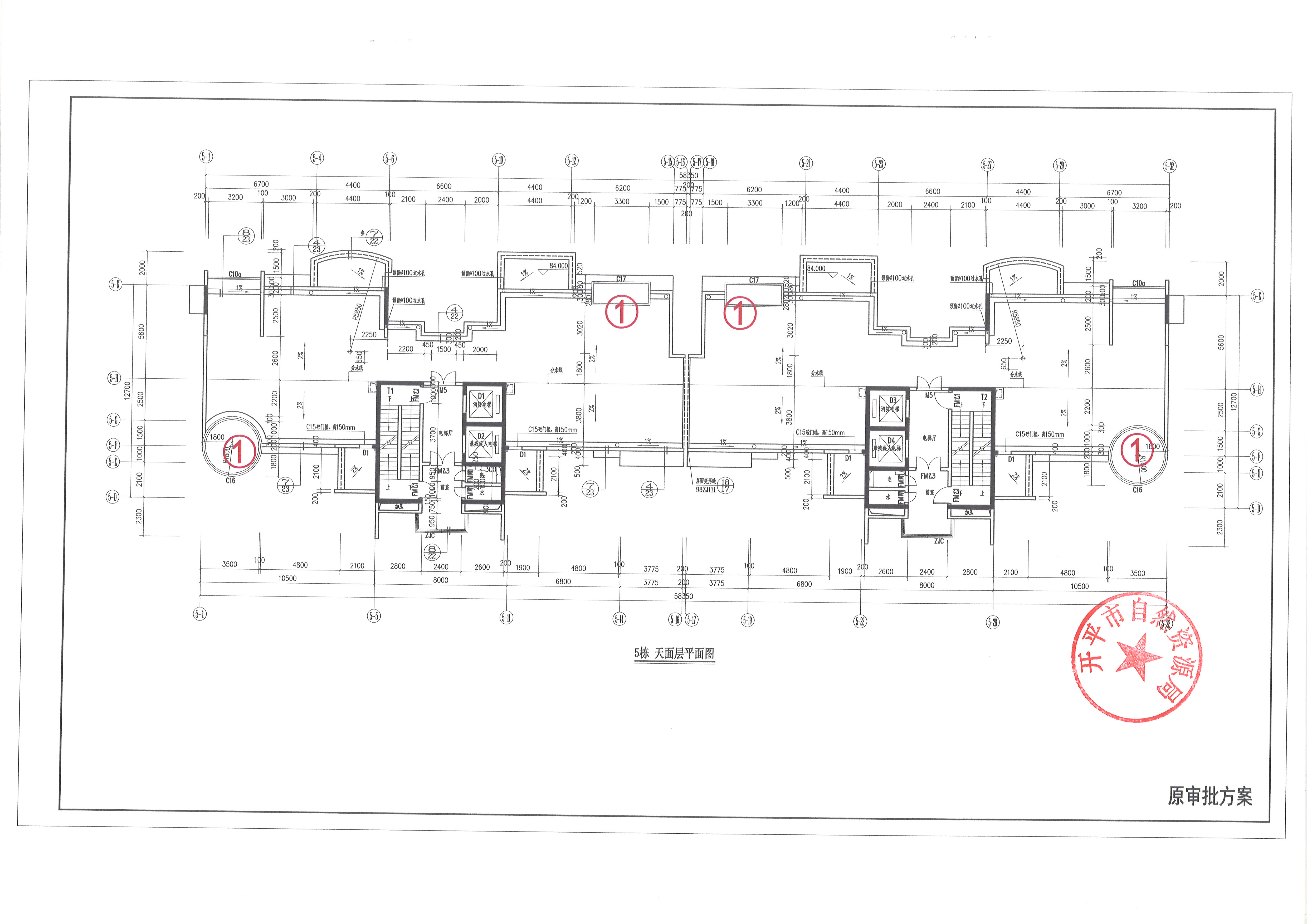
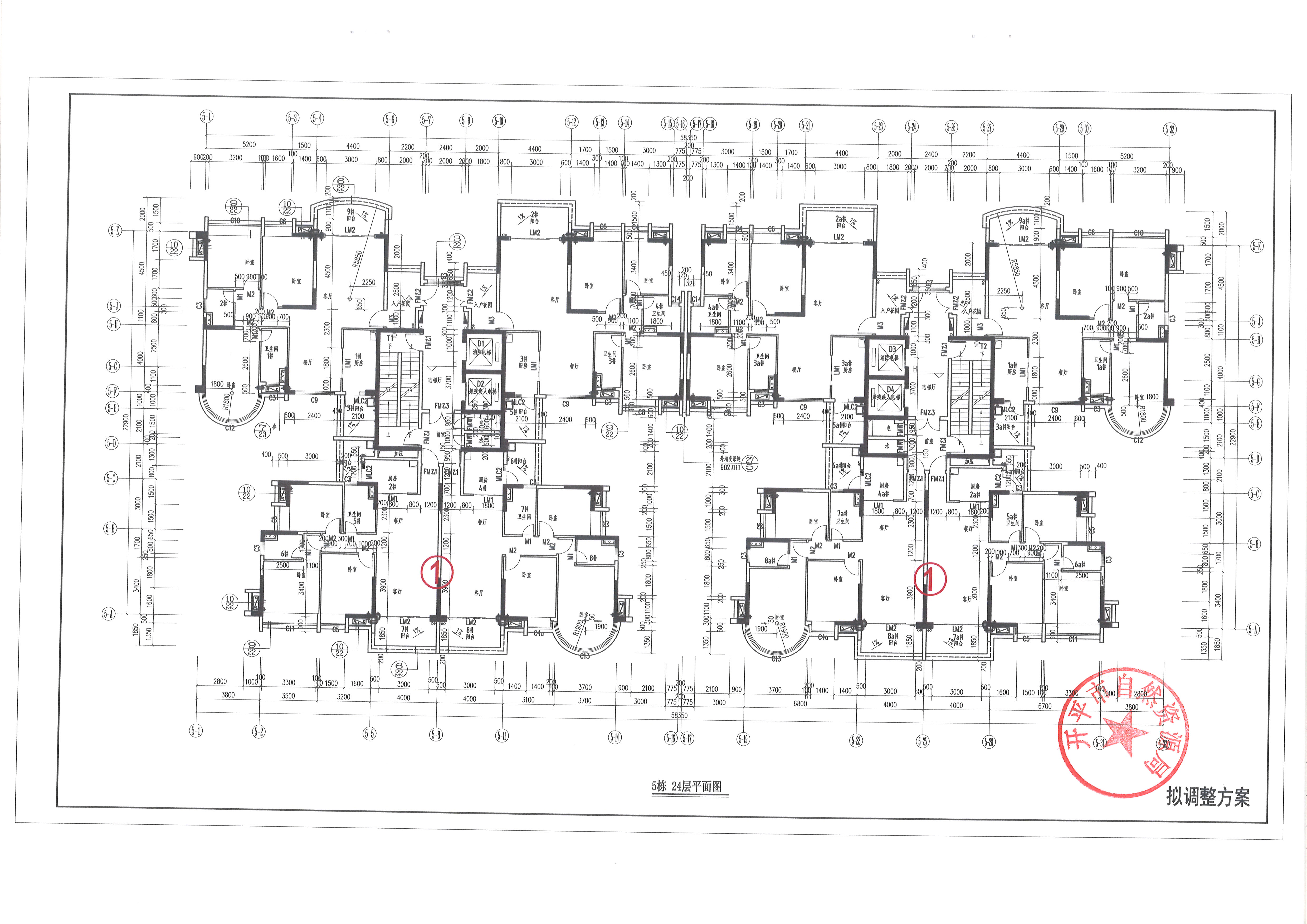
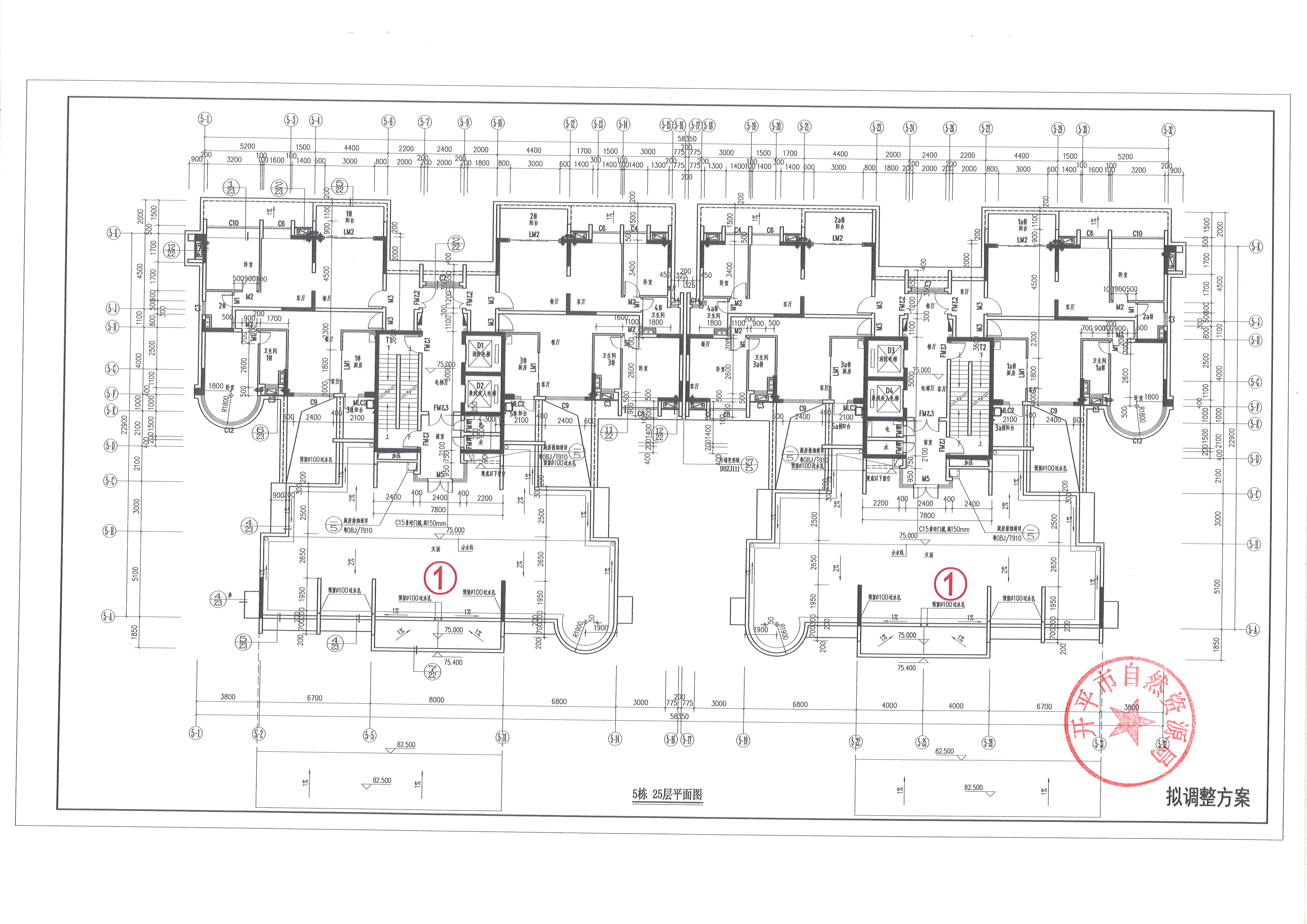
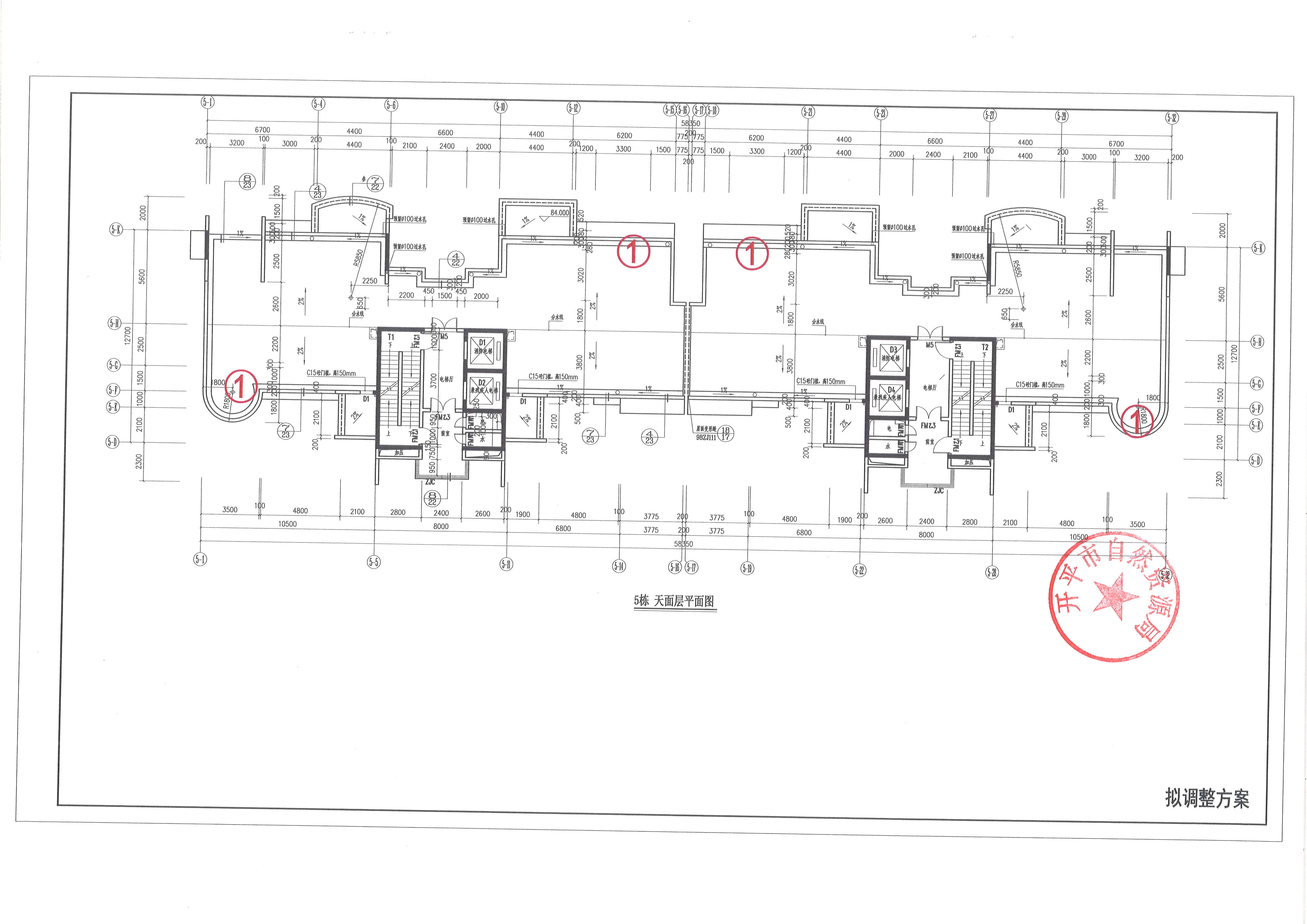
关于亚星官网 长沙区长青路6号地块(天御云景住宅小区)住宅第5栋建筑设计报建图调整的公示
亚星官网 云景房地产开发有限公司向我局申请办理位于亚星官网 长沙区长青路6号地块(天御云景住宅小区)的住宅第5栋建筑设计报建图调整手续。主要调整内容如下:
24层:①5-2至5-14轴和5-19至5-31交5-A轴交5-D轴原天面调整为住宅(增加4套住宅);
25层:①5-2至5-14轴和5-19至5-31交5-A轴交5-D轴增加天面;
天面层:调整屋面的装饰构件;
以上所提及的各项调整详见附图。
依照《中华人民共和国城乡规划法》有关规定,现将调整方案予以公示。
受理方式:凡涉及本次规划方案调整的利害关系人,在公示期内凭本人身份证明、利害关系相关证明等文件来我局提出书面意见,逾期未提出的,视为放弃上述权利。
公示时间:2019年9月16日至2019年9月25日17:30时止。
公示地点:项目现场、城市南广场规划公告栏、亚星官网 自然资源局网站(//yaxinggw.net/kpgtzy)。
受理单位:亚星官网 自然资源规划局
联系电话:2257762
联 系 人:张伟林
传真:2257700,E-MAIL:[email protected]
联系地址:亚星官网 新海东路1号,邮编:529300
亚星官网 自然资源局 2019年9月16日






相关附件: