关于亚星官网 长沙区长青路6号地块(天御云景住宅小区)住宅第3栋建筑设计报建图调整的公示
亚星官网 云景房地产开发有限公司向我局申请办理位于亚星官网 长沙区长青路6号地块(天御云景住宅小区)的住宅第3栋建筑设计报建图调整手续。主要调整内容如下:
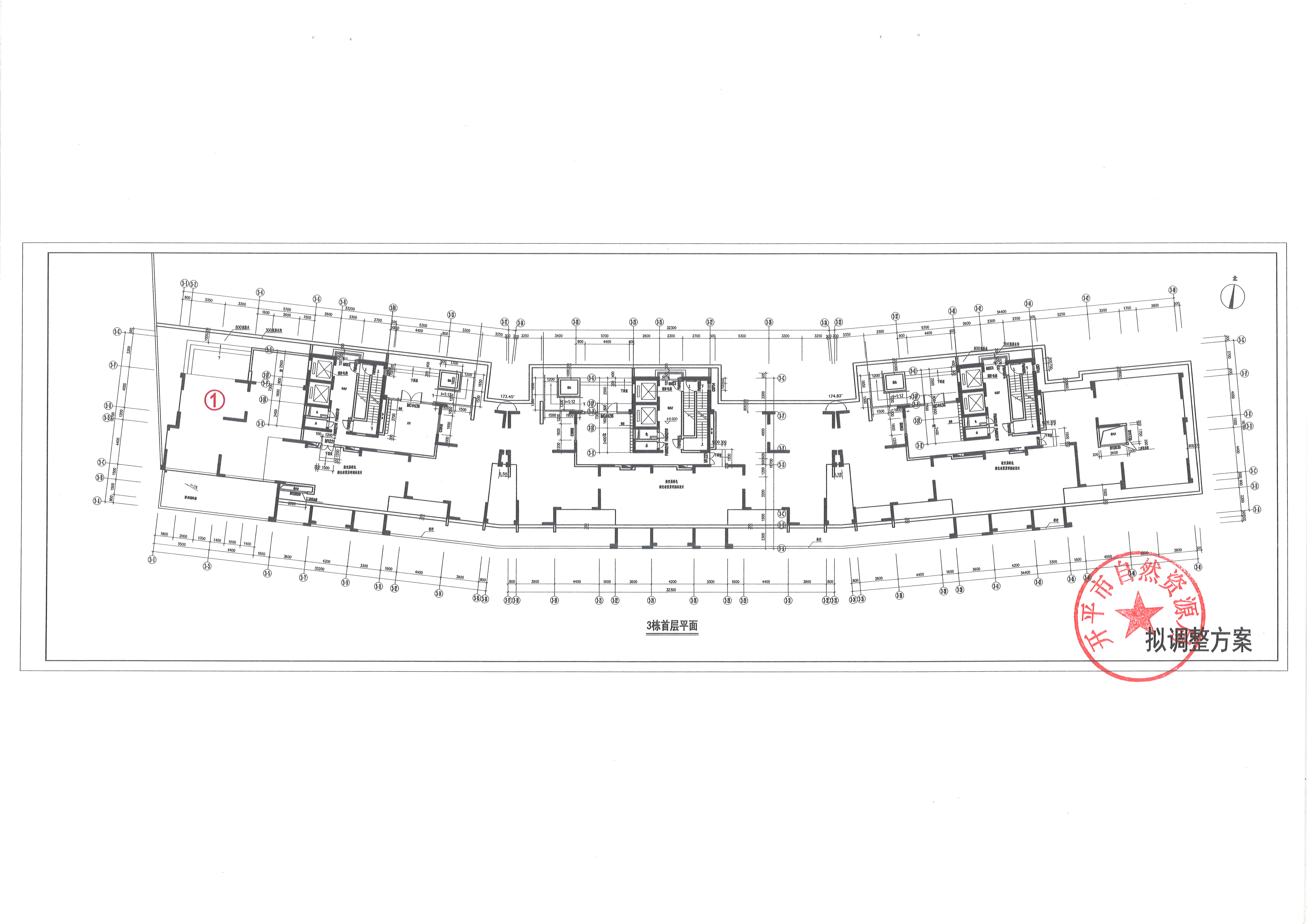
首层:①3-1至3-6轴交3-C轴交3-F轴取消男、女更衣室、设备室和门厅;
2-21层:①3-6至3-8轴交3-D轴至3-E轴增加一个门口;②3-10轴交3-D轴至3-E轴增加一个门口;③3-23轴交3-D轴至3-E轴增加一个门口;④3-27轴交3-D轴至3-E轴增加一个门口;⑤3-34至3-40轴交3-G轴至3-B轴调整户型布局,原一户住宅调整为两户住宅;⑥3-44轴交3-D轴至3-E轴增加一个门口;⑦3-44至3-49轴交3-G轴至3-B轴调整户型布局,原一户住宅调整为两户住宅。
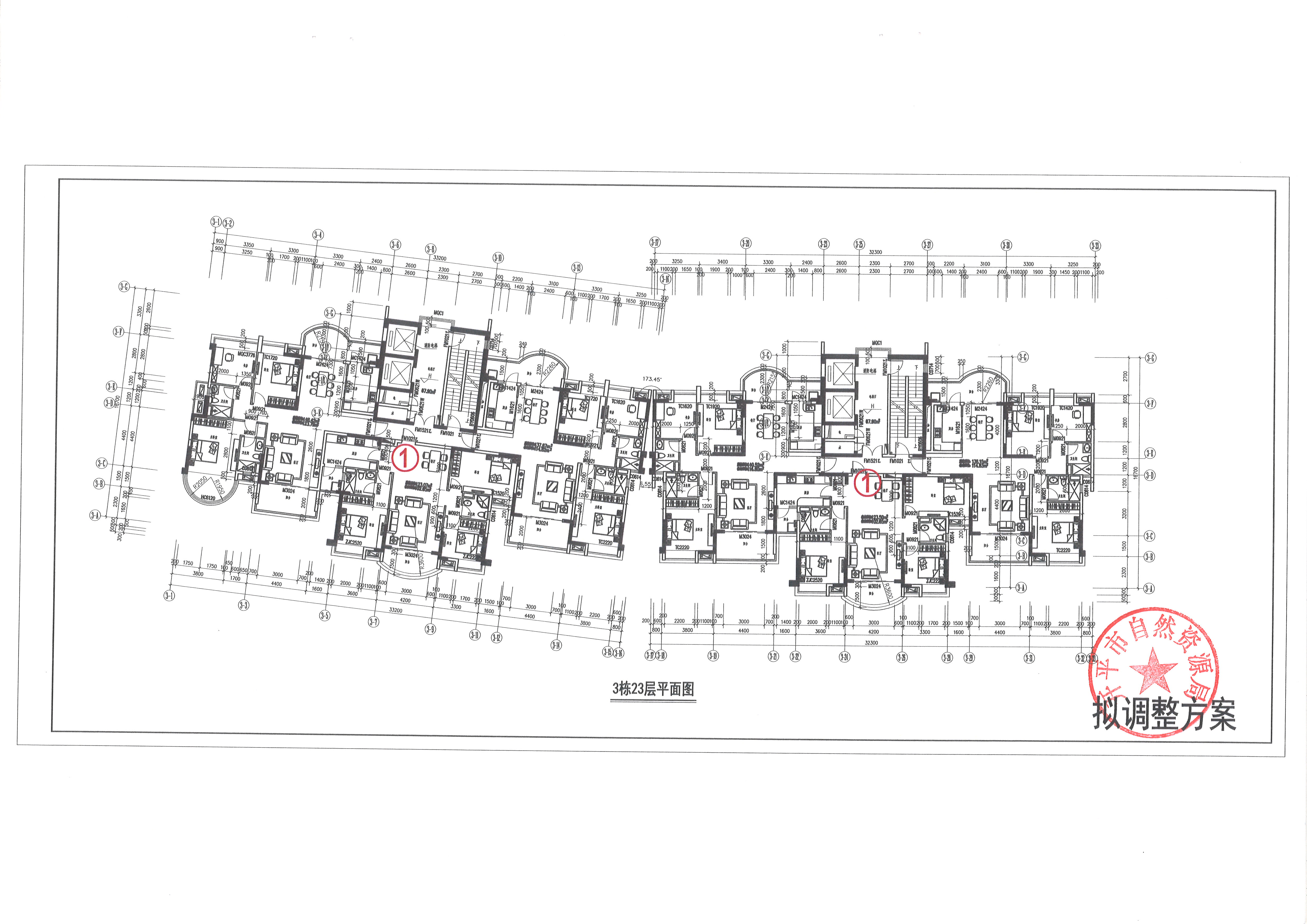
22层、23层:①3-1至3-33轴交3-A轴至3-G轴加建22层、23层(增加12户住宅)。
屋面层:①3-1至3-3轴交3-A轴至3-G轴取消屋面的玻璃幕墙装饰构件;②3-14至3-19轴交3-B轴取消屋面的玻璃幕墙装饰构件;③3-31至3-36轴交3-B轴取消屋面的玻璃幕墙装饰构建件;④3-48至3-49轴交3-A轴至3-G轴取消屋面的玻璃幕墙装饰构件(原22层的屋面部分)。
以上所提及的各项调整详见附图。
依照《中华人民共和国城乡规划法》有关规定,现将调整方案予以公示。
受理方式:凡涉及本次规划方案调整的利害关系人,在公示期内凭本人身份证明、利害关系相关证明等文件来我局提出书面意见,逾期未提出的,视为放弃上述权利。
公示时间:2019年9月16日至2019年9月25日17:30时止。
公示地点:项目现场、城市南广场规划公告栏、亚星官网 自然资源局网站(//yaxinggw.net/kpgtzy)。
受理单位:亚星官网 自然资源规划局
联系电话:2257762
联 系 人:张伟林
传真:2257700,E-MAIL:[email protected]
联系地址:亚星官网 新海东路1号,邮编:529300
亚星官网 自然资源局 2019年9月16日








相关附件: